Wednesday, April 22, 2026
AFTODIOIKISI.COM.CY
  • Αρχικη
  • Δημοι
    • Λευκωσία
    • Λεμεσός
    • Λάρνακα
    • Πάφος
    • Ελεύθερη Επαρχία Αμμοχώστου
    • Κατεχόμενοι Δήμοι Κοινότητες
  • Κοινοτητες
  • Κυπρος
  • Αρθρα – Μελετες
  • Συνεντευξεις
  • Διεθνη
  • Διαδικτυο
No Result
View All Result
  • Αρχικη
  • Δημοι
    • Λευκωσία
    • Λεμεσός
    • Λάρνακα
    • Πάφος
    • Ελεύθερη Επαρχία Αμμοχώστου
    • Κατεχόμενοι Δήμοι Κοινότητες
  • Κοινοτητες
  • Κυπρος
  • Αρθρα – Μελετες
  • Συνεντευξεις
  • Διεθνη
  • Διαδικτυο
No Result
View All Result
AFTODIOIKISI.COM.CY
No Result
View All Result
Home Δημοι

Ξεκίνησε η ανάπλαση της Πλατείας Αγίου Μάμα στους Τρούλλους

by Aftodioikisi
January 9, 2026
Reading Time: 1 min read
A A
Share this...

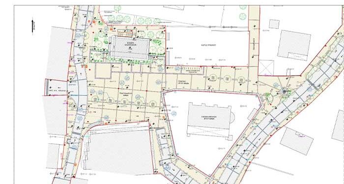
Η Ανάπλαση της Πλατείας Αγίου Μάμα στο Δημοτικό Διαμέρισμα Τρούλλων εισέρχεται πλέον στη φάση της υλοποίησης, σηματοδοτώντας την έναρξη ενός έργου-ορόσημου για την κοινότητα και για ολόκληρη την Αραδίππου.

Σε δήλωσή του, ο Δήμαρχος Αραδίππου κ. Χριστόδουλος Πάρτου ανέφερε:
«Η Ανάπλαση της Πλατείας Αγίου Μάμα είναι ένα έργο ουσίας που αναβαθμίζει τον πυρήνα της κοινότητας Τρούλλων και ενισχύει συνολικά την εικόνα της Αραδίππου. Δημιουργούμε έναν σύγχρονο, λειτουργικό και φιλικό δημόσιο χώρο, που σέβεται την ιστορία του τόπου και απαντά στις ανάγκες των κατοίκων και των επισκεπτών. Είναι μια επένδυση στο μέλλον της περιοχής και στην ποιότητα ζωής των δημοτών μας.»

Πρόκειται για μια ολοκληρωμένη αστική παρέμβαση που αναβαθμίζει τον πυρήνα της κοινότητας, ενισχύει τη λειτουργικότητα και την αισθητική του δημόσιου χώρου και αναδεικνύει την τοπική ταυτότητα, συνδέοντας τον ιστορικό και πολιτιστικό χαρακτήρα της περιοχής με τις σύγχρονες ανάγκες των κατοίκων και των επισκεπτών.

Η νέα πλατεία σχεδιάζεται ως ζωντανό κύτταρο κοινωνικής ζωής, χώρος συνάντησης, πολιτισμού και δημιουργίας, ικανός να φιλοξενεί εκδηλώσεις και δράσεις που ενισχύουν τη συνοχή της κοινότητας και προσδίδουν νέα δυναμική στην καθημερινότητα των Τρούλλων.

image

Ανάδειξη της Αραδίππου και αναπτυξιακή – τουριστική προοπτική

Η υλοποίηση του έργου συμβάλλει ουσιαστικά στη συνολική ανάδειξη της Αραδίππου, ενισχύοντας την εικόνα του Δήμου ως περιοχής που επενδύει στη βιώσιμη ανάπτυξη, την ποιότητα ζωής και τον σεβασμό στον δημόσιο χώρο.

Η αισθητική και χωρική αναβάθμιση της πλατείας, σε άμεση συνάφεια με τη νέα και την παλαιά Εκκλησία του Αγίου Μάμα, δημιουργεί ένα ενιαίο και ελκυστικό περιβάλλον που μπορεί να αποτελέσει σημείο αναφοράς για πολιτιστικές διαδρομές και ήπια τουριστική ανάπτυξη, προσελκύοντας επισκέπτες και ενισχύοντας την τοπική οικονομία.

Παράλληλα, η δημιουργία σύγχρονων υποδομών, χώρων πρασίνου και πολιτιστικών εγκαταστάσεων αναβαθμίζει την εμπειρία τόσο των κατοίκων όσο και των επισκεπτών, καθιστώντας τους Τρούλλους έναν προορισμό αυθεντικό, λειτουργικό και φιλόξενο.

Ένα έργο με κοινωνικό και περιβαλλοντικό αποτύπωμα

Ιδιαίτερη έμφαση δίνεται στην καθολική προσβασιμότητα, διασφαλίζοντας ότι ο νέος δημόσιος χώρος θα είναι προσβάσιμος και φιλικός προς όλους, συμπεριλαμβανομένων των ατόμων με αναπηρίες, των ηλικιωμένων και των οικογενειών με παιδιά.

Ο σχεδιασμός του έργου ενσωματώνει σύγχρονες περιβαλλοντικές πρακτικές, με ενίσχυση του πρασίνου, βιώσιμα υλικά και λειτουργικές παρεμβάσεις που αναβαθμίζουν το αστικό τοπίο και βελτιώνουν την ποιότητα ζωής στην περιοχή.

Υλοποίηση του έργου

Το έργο υλοποιείται από την εταιρεία IMATECH KOUNNA LIMITED, κατόπιν δημόσιου διαγωνισμού (Αρ. ΔΑ/ΤΥ/22/2024), με συνολικό συμβατικό ποσό €2.219.885,80.

Η διάρκεια υλοποίησης του έργου ανέρχεται σε 24 μήνες, σύμφωνα με το εγκεκριμένο χρονοδιάγραμμα.

Κυκλοφοριακές ρυθμίσεις

Η εκτέλεση του έργου θα υλοποιηθεί σε δύο φάσεις.

Οι κάτοικοι και επαγγελματίες που θα επηρεαστούν από την πρώτη φάση των εργασιών θα ενημερωθούν έγκαιρα με γραπτή επιστολή, η οποία θα παραδοθεί ιδιοχείρως από τον εργολάβο του έργου.

Όσον αφορά τους επισκέπτες της περιοχής, παρακαλούνται όπως ακολουθούν τη σχετική σήμανση και τις κυκλοφοριακές ρυθμίσεις που θα τοποθετηθούν από την Τροχαία, για την ασφάλεια όλων και τη διευκόλυνση της κυκλοφορίας.


Share this...
χώροι στάθμευσης

Εγκατάσταση έξυπνων συστημάτων σε χώρους στάθμευσης στον Δήμο Στροβόλου

April 21, 2026
Εργασίες

Ξεκινούν έργα στους Αγίους Αναργύρους Λάρνακας (21–28 Απριλίου)

April 21, 2026
Κενές θέσεις

Κενή θέση Φροντιστή/στριας Κτηρίου στο Πολυδύναμο Λευκωσίας

April 21, 2026
Ένωση Δήμων

Ένωση Δήμων: Σύσταση ad hoc Ομάδας Εργασίας για τις επικίνδυνες οικοδομές

April 21, 2026
Πρόεδρος Δημοκρατίας

Πρόεδρος Δημοκρατίας: Έχουμε ευθύνη και υποχρέωση όλοι να σεβόμαστε και το Σύνταγμα και το κράτος και τους θεσμούς

April 21, 2026
Δήμος Στροβόλου

Ο Δήμος Στροβόλου ακούει τους δημότες – Ενοριακό Συμβούλιο Χρυσελεούσας – Αρχαγγέλου

April 21, 2026

Recent News

  • Εγκατάσταση έξυπνων συστημάτων σε χώρους στάθμευσης στον Δήμο Στροβόλου
  • Ξεκινούν έργα στους Αγίους Αναργύρους Λάρνακας (21–28 Απριλίου)
  • Κενή θέση Φροντιστή/στριας Κτηρίου στο Πολυδύναμο Λευκωσίας
  • Ταυτότητα
  • Επικοινωνία
  • Ταυτότητα
  • Επικοινωνία

© 2020 News & Magazine - Premium news ΑυτοδιοίκησηCY.

Χρησιμοποιούμε cookies στον ιστότοπό μας για να σας προσφέρουμε την καλύτερη εμπειρία. Κάνοντας κλικ στο "Αποδοχή όλων", συναινείτε στη χρήση όλων των cookies ή μπορείτε να επισκεφθείτε τις "Ρυθμίσεις cookie" για να δώσετε μια ελεγχόμενη συγκατάθεση.
ΡυθμίσειςΑποδοχή όλων
Manage consent

Privacy Overview

This website uses cookies to improve your experience while you navigate through the website. Out of these, the cookies that are categorized as necessary are stored on your browser as they are essential for the working of basic functionalities of the website. We also use third-party cookies that help us analyze and understand how you use this website. These cookies will be stored in your browser only with your consent. You also have the option to opt-out of these cookies. But opting out of some of these cookies may affect your browsing experience.
Necessary
Always Enabled
Necessary cookies are absolutely essential for the website to function properly. These cookies ensure basic functionalities and security features of the website, anonymously.
CookieDurationDescription
cookielawinfo-checkbox-analytics11 monthsThis cookie is set by GDPR Cookie Consent plugin. The cookie is used to store the user consent for the cookies in the category "Analytics".
cookielawinfo-checkbox-functional11 monthsThe cookie is set by GDPR cookie consent to record the user consent for the cookies in the category "Functional".
cookielawinfo-checkbox-necessary11 monthsThis cookie is set by GDPR Cookie Consent plugin. The cookies is used to store the user consent for the cookies in the category "Necessary".
cookielawinfo-checkbox-others11 monthsThis cookie is set by GDPR Cookie Consent plugin. The cookie is used to store the user consent for the cookies in the category "Other.
cookielawinfo-checkbox-performance11 monthsThis cookie is set by GDPR Cookie Consent plugin. The cookie is used to store the user consent for the cookies in the category "Performance".
viewed_cookie_policy11 monthsThe cookie is set by the GDPR Cookie Consent plugin and is used to store whether or not user has consented to the use of cookies. It does not store any personal data.
Functional
Functional cookies help to perform certain functionalities like sharing the content of the website on social media platforms, collect feedbacks, and other third-party features.
Performance
Performance cookies are used to understand and analyze the key performance indexes of the website which helps in delivering a better user experience for the visitors.
Analytics
Analytical cookies are used to understand how visitors interact with the website. These cookies help provide information on metrics the number of visitors, bounce rate, traffic source, etc.
Advertisement
Advertisement cookies are used to provide visitors with relevant ads and marketing campaigns. These cookies track visitors across websites and collect information to provide customized ads.
Others
Other uncategorized cookies are those that are being analyzed and have not been classified into a category as yet.
SAVE & ACCEPT
No Result
View All Result
  • Δημοι
    • Λευκωσία
    • Λεμεσός
    • Λάρνακα
    • Πάφος
    • Ελεύθερη Επαρχία Αμμοχώστου
    • Κατεχόμενοι Δήμοι Κοινότητες
  • Κοινότητες
  • Κυπρος
  • Διεθνη
  • Συνεντεύξεις
  • Διαδικτυο
  • Άρθρα – Μελέτες

© 2020 News & Magazine - Premium news ΑυτοδιοίκησηCY.